0371-67772626

    您当前的位置:
  1. 网站首页
  2. >
  3. 新闻中心
  4. >
  5. 行业新闻
  6. >
  7. 制砂生产线|制沙生产线|制砂生产线工艺流程
?

制砂生产线|制沙生产线|制砂生产线工艺流程

作者:杏耀平台登录入口机器 发布时间:2011/01/14 00:00:00 更新时间:2020/12/16 16:31:45

厂家直销,一台也是出厂价! 如果您想了解我们的产品,欢迎点击咨询 在线咨询

全套砂石生产线设备可用于硬质石灰石、花岗石、玄武岩、河卵石、冶金渣等多种物料的骨料及人工造砂作业,适用于水电、建材、高速公路、城市建设等行业的应用。本文就针对全套砂石生产线作简单介绍。

制砂生产线概况

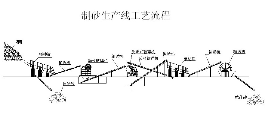
制沙生产线又称制砂生产线,也就是我们常说的机制砂生产线,这套生产线有振动给料机、颚式破碎机、冲击式破碎机、振动筛和胶带传输机等设备组台而成。根据不同的工艺要求:各种型号的制砂生产线设备进行组合,满足于客户的不同制砂生产线工艺要求。

制砂生产线工艺流程图

点击咨询生产线相关问题

制沙生产线特点和优势

1、制沙生产线投资仅为同等处理能力常规生产线的1/3—1/5。

2、制砂生产线每吨砂石生产成本仅为常规生产线的1/3—1/4。

3、制沙生产线生产自动化程度高,每班生产人员为3人以下。

4、制砂生产线投资回收期短,一般3个月可收回投资。

制沙生产线俯瞰图

制沙生产线俯瞰图

制砂生产线工艺流程图

制砂生产线工艺图

制砂生产线工艺流程

杏耀平台登录入口制砂生产线

河南杏耀平台登录入口矿山机器 生产的全套制砂生产线设备,为您提供全面的技术支持,制砂生产线通常由制沙机、振动筛、轮斗洗砂机、胶带输送机、集中电控等设备组成;设计产量一般为50-500吨/小时。我公司历经数年的开发研究,将具有成熟水准的河卵石制沙机与公司其他系列产品相配套,设计出的全套制砂生产线,在市面上口碑较好。

杏耀平台登录入口机器制砂生产线发货图

杏耀平台登录入口机器制砂生产线发货图

制砂生产线现场图

制砂生产线现场

制砂生产线客户现场1

制砂生产线客户现场

制砂生产线客户现场2

在线留言

全套生产设备 一站式帮您输出建厂

购买设备得花多少钱?预约留言后立即算出设备投资预算,更多优惠折扣等着你。 (今日已有33人成功通话)

您的称呼:

*联系方式:

*留言内容:

电话:0371-67772626

免费获取

建厂方案

投资分析

环保政策分析

也许您还想看: 更多